- Brzo postavljene mobilne svlačionice
- S dizajnom koji zadovoljava Vaše potrebe
- S opcijom iznajmljivanja namještaja
Kupite Mobilbox svlačionice!
Odaberite Mobilbox udobnu i sofisticiranu svlačionicu koja se brzo postavlja. Uz svlačionice, dostupna je oprema (ormari, klupe, klima uređaji itd.) za iznajmljivanje
Kome može biti zanimljiva kupnja svlačionica?
- Kome je hitno potrebna svlačionica
- Tko traži sofisticirano i prikladno rješenje
- Tko preferira module koji se mogu lako prilagoditi oscilirajućem broju zaposlenih
Zašto se obratiti Mobilboxu kada je u pitanju kupnja svlačionica?
- Profesionalna usluga
- Prilagodba Vašim zahtjevima
- Prilagođen plan plaćanja
Svlačionice za prodaju specifičnih karakteristika i veličina
MB20
MB20
Dizajn:
- Lako postavljanje i mobilnost
- Promjenjiva struktura panela
- Okvir kontejnera: bojana čelična konstrukcija
Zidovi:
- vanjski: profilirani čelični limovi
- unutarnji: iverica
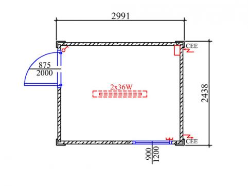
- 1 kom vanjska vrata: 875 x 2.000 mm
- 2 kom bijelih PVC prozora: 900 x 1.200 mm, mehanizam za nagib i okret, termički izoliran, s roletama
Boje:
- okvir kontejnera: crvena (RAL 3000)
- vanjski zidovi: svijetlosiva (RAL 7035)
- unutarnji zidovi: svijetlo drvo ili bijeli
- pod: svijetlosivi PVC
Izolacija:
- Pod: 60/100 mm – mineralna vuna
- Zidovi: 60 mm – mineralna vuna
- Krov: 100 mm – mineralna vuna
Električne instalacije:
- 1 kom 400 V / 5-polni 3 x 32 A vanjski priključak prema CEE normama, ugrađen u okvir krova, spojiv
- 1 kom razvodna kutija, s RCD-om i prekidačem
- 1 kom prekidač za svjetlo
- 2 kom 2 x 36 W fluorescentnih cijevi
- 3 kom utičnice 230 V
Po posebnim narudžbama:
- Vanjska boja po želji prema RAL standardu
- Prilagođene dimenzije i dizajn
Dimenzije
| Tip | Vanjske dimenzije | Unutarnje dimenzije | Težina | ||||
| D | Š | V | D | Š | V | ||
| MB20 | 6.058 | 2.438 | 2.591 | 5.858 | 2.238 | 2.330 | 1,980 |
| MB20 ECO | 6,058 | 2.438 | 2.591 | 5,905 | 2,270 | 2,300 | 1,650 |
| MB25 | 6.058 | 2.438 | 2.591 | 5.858 | 2.238 | 2.330 | 2,150 |
| MB26 | 6.058 | 2.438 | 2.591 | 5.858 | 2.238 | 2.330 | 2,220 |
| MB16 | 4,880 | 2.438 | 2.591 | 4,680 | 2.238 | 2.330 | 1,620 |
| MB10 | 2,991 | 2.438 | 2.591 | 2,791 | 2.238 | 2.330 | 1,130 |
| MB10 ECO | 2,991 | 2.438 | 2.591 | 2,838 | 2,270 | 2,300 | 820 |
| MB08 | 2,438 | 2.438 | 2.591 | 2,235 | 2.238 | 2.330 | 720 |
| MB08 ECO | 2,438 | 2.438 | 2.591 | 2,285 | 2,270 | 2,300 | 780 |
| MB 15 | 2,991 | 2.438 | 2.591 | 2,791 | 2,238 | 2,330 | 1,280 |
PIŠITE NAM
Za ponudu ispunite formular
Naše usluge
- najam kontejnera
- prodaja kontejnera
- savetovanje
- dizajniranje kontejnera
- proizvodnja kontejnera
- postavljanje kontejnera (manipulacija kranom, sastavljanje)
- prevoz kontejnera
- održavanje kontejnera
- izrada kontejnera prema posebnim zahtevima
Oblasti primene naših kontejnera
- kancelarije za projektante
- kancelarije za vođe gradilišta
- svlačionice
- smeštajne jedinice
- radionice
- recepcija
- portirnica
- prodajni prostori
- stanice za testiranja
- skladištenje opreme
- skladištenje alata
- mobilni sanitarni čvor



















