Mobilbox Hladnjače – Profesionalna Rešenja za Kontrolisano Skladištenje
Idealno rešenje za čuvanje svežih i zamrznutih proizvoda
Mobilbox nudi vrhunske hladnjače za sigurno i efikasno skladištenje paletizirane robe u većim količinama. Naše hladnjače dostupne su u standardnim dimenzijama od 20′ i 40′, prilagođene različitim poslovnim potrebama.
Ključne karakteristike:
✔ Širok temperaturni opseg (–25°C do +25°C) – savršeno za sveže i zamrznute proizvode
✔ Visokoefikasni Daikin rashladni sistem – energetski efikasan i pouzdan
✔ Digitalna kontrola i praćenje temperature – precizno upravljanje uslovima skladištenja
✔ PVC trakasta zavjesa – smanjuje gubitak hladnoće tokom utovara/istovara
✔ Unutrašnje osvetljenje – omogućava jasnu vidljivost u svim uslovima
✔ Poboljšana bezbednost – sigurnosne brave (20′) i specijalizirana hladnjačka vrata (40′)
✔ Pokretna rampa – olakšava utovar i istovar robe
Zašto izabrati Mobilbox hladnjače?
✅ Kvalitet i pouzdanost – izdržljiva konstrukcija i vrhunska rashladna tehnologija
✅ Fleksibilnost – prilagodljivost temperaturnim zahtevima različitih vrsta robe
✅ Ušteda energije – energetski efikasni sistemi koji smanjuju operativne troškove
✅ Jednostavna upotreba – intuitivna kontrola i praktičan dizajn
Primena:
-
Prehrambena industrija – čuvanje mesa, ribe, mlečnih proizvoda i zamrznute robe
-
Farmacija – skladištenje osetljivih lekova i medicinskih proizvoda
-
Logistika i distribucija – privremeno skladištenje robe u lancu snabdevanja
-
Poljoprivreda – čuvanje svežeg voća i povrća
📞 Kontaktirajte nas za besplatnu procenu i rešenje po meri!
📧 info@mobilbox.hr | +385 1 2323 500
Dostupni smo u celoj Srbiji
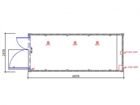
MR20 Hladnjača
Tehnički podatci:
- Pogodno za skladištenje sveže i smrznute paletirane robe
- Automatska regulacija temperature između -25,00 °C i +25,0 °C
- Daikin rashladni uređaj koji štedi energiju
- Digitalno čuvanje podataka
- 1 kom 230 V priključak za rasvetu
- 1 kom 400 V priključak za rashladni uređaj
- Jačina struje: 3 x 32 A
- Ukupna potrošnja: 13,5 kW
- Unutrašnja rasveta
- Sigurnosna brava
- PVC trakasta zavesa
- Pomična rampa
- Maksimalno opterećenje: 20.740 kg (20′)
Dimenzije
| Tip | Spoljašnje dimenzije | Unutrašnje dimenzije | Težina | ||||
| D | Š | V | D | Š | V | ||
| MR20 | 6,058 | 2,438 | 2.591 | 5,427 | 2.292 | 2.310 | 3,260 |
| MR40 | 12,192 | 2,438 | 2.591 | 11,560 | 2.292 | 2.310 | 4,650 |
PIŠITE NAM
Za ponudu ispunite formular
Naše usluge
- najam kontejnera
- prodaja kontejnera
- savetovanje
- dizajniranje kontejnera
- proizvodnja kontejnera
- postavljanje kontejnera (manipulacija kranom, sastavljanje)
- prevoz kontejnera
- održavanje kontejnera
- izrada kontejnera prema posebnim zahtevima
Oblasti primene naših kontejnera
- kancelarije za projektante
- kancelarije za vođe gradilišta
- svlačionice
- smeštajne jedinice
- radionice
- recepcija
- portirnica
- prodajni prostori
- stanice za testiranja
- skladištenje opreme
- skladištenje alata
- mobilni sanitarni čvor



