Iznajmljivanje sanitarnih kontejnera – Mobilbox rešenja za higijenu i komfor
Kompanija Mobilbox nudi profesionalne usluge najma mobilnih sanitarnih kontejnera – različitih dimenzija i izvedbi.
Zašto izabrati Mobilbox sanitarne kontejnere?
Kompletno opremljeni – grejani prostori, topla voda
Hijenijski standardi – priključak na dovod i odvod
Mobilna rešenja – brza instalacija
Ekološki prihvatljivi – štedljivi vodokotlići i uredaji
Fleksibilni uslovi – dnevni, nedeljni ili mesecni najam
Primena naših sanitarnih jedinica:
- Građevinska gradilišta – za radnike i upravljačko osoblje
- Open-air festivali i koncerti – za posetioce i izvođače
- Sezonske lokacije – kampovi, plaže, ski staze
- Privatne proslave – venčanja, rođendani, maturske večeri
- Humanitarne akcije – hitna sanitarna rešenja
Mobilbox garantuje:
✔ Profesionalnu uslugu i brzu reakciju
✔ Transparentne cene bez skrivenih troškova
Kontaktirajte nas danas za besplatno savetovanje!
Mobilbox iznajmljivanje tuš kontejnera
Tražite tuš kontejnere? Imamo idealno rešenje za vas!
Nudimo moderno organizovane tuš kontejnere u različitim varijantama:
- Samostalni tuš kontejneri (6 tuš kabina)
- Odvojeni muško-ženski prostori s dva ulaza
- Kombinovana rešenja (tuš + WC)
Pronaćićemo optimalno rešenje za vaše specifične potrebe!
Kontaktirajte Mobilbox tim za personalizovanu ponudu.
Mobilbox najam WC kontejnera
Tražite funkcionalne WC kontejnere za najam? Mobilbox nudi kompletnu paletu sanitarnih rešenja:
• Standardni WC kontejneri sa 6 kabina
• Segmentirani modeli sa odvojenim muškim i ženskim ulazima
• Kombinovane jedinice (WC + tuševi u jednom kontejneru)
Naše prednosti:
✓ Modularni dizajn za brzu instalaciju
✓ Visok nivo higijene i diskrecije
✓ Fleksibilni rasporedi po vašim zahtevima
Obezbeđujemo:
- Profesionalnu uslugu najma
- Brzu isporuku na teritoriji cele Srbije
- Redovno održavanje i čišćenje (opcionalno)
Kontaktirajte naš prodajni tim za optimalno rešenje koje će zadovoljiti sve vaše zahteve.
Mobilbox – partner za kvalitetna sanitarna rešenja!
Dostupni smo u celoj Srbiji
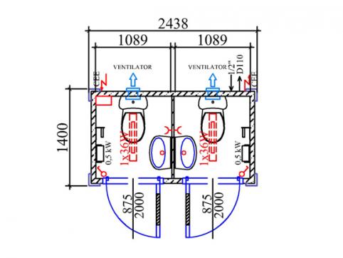
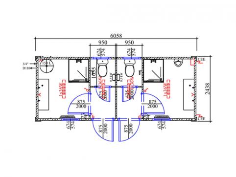
Karakteristike MW20 WC kontejner
Osnovna oprema:
- 1 kom spoljašnja vrata: 875 x 2.000 mm
- 4 kom belih PVC prozora s nagibnim mehanizmom: 674 x 574 mm, termički izolovano zamagljeno staklo
- 6 kom WC kabina, vrata s WC bravom
- 6 kom keramičkih WC-a s vodokotlićem, držač za papir
- 2 kom duplih akrilnih umivaonika sa slavinom hladne vode, ogledalo, PVC polica, držač za sapun i držač peškira
- 2 kom pisoara
- 2 kom pregrade
Električne instalacije:
- 1 kom 400 V / 5-polni 3 x 32 A spoljašnji priključak prema CEE normama, ugrađen u okvir krova, spojiv
- 1 kom razvodna kutija s osiguračima, s RCD-om i prekidačem
- 2 kom 1 x 36 W fluorescentnih cevi
- 1 kom prekidač za svetlo
- 2 kom utičnice 230 V
- 1 kom el. grijalica 2,0 kW
Dimenzije
| Tip | Spoljašnje dimenzije | Unutrašnje dimenzije | Težina | ||||
| D | Š | V | D | Š | V | ||
| MW20 | 6,058 | 2,438 | 2,591 | 5.858 | 2.238 | 2.330 | 2,760 |
| MW23 | 6,058 | 2,438 | 2,591 | 5.858 | 2.238 | 2.330 | 2,690 |
| MS20 | 6,058 | 2,438 | 2,591 | 5.858 | 2.238 | 2.330 | 2,560 |
| MS22 | 6,058 | 2,438 | 2,591 | 5.858 | 2.238 | 2.330 | 2,460 |
| MS28 | 6,058 | 2,438 | 2,591 | 5.858 | 2.238 | 2.330 | 2,690 |
| MZ20 | 6,058 | 2,438 | 2,591 | 5.858 | 2.238 | 2.330 | 2,520 |
| MW05 | 1,400 | 2,438 | 2,591 | 1,200 | 2.238 | 2.330 | 720 |
| MS10 | 2,991 | 2,438 | 2,591 | 2,791 | 2.238 | 2.330 | 1,560 |
| MW10 | 2,991 | 2,438 | 2,591 | 2,791 | 2.238 | 2.330 | 1,440 |
| MT10 | 2,991 | 2,438 | 700 | 800 | |||
| MT20 | 6,058 | 2,438 | 700 | 1,800 | |||
| MVT20 | 6,058 | 2,438 | 700 | 1,900 | |||
| MB27 | 6,058 | 2,438 | 2,591 | 5,858 | 2,238 | 2,330 | 2,300 |
PIŠITE NAM
Za ponudu ispunite formular
Naše usluge
- najam kontejnera
- prodaja kontejnera
- savetovanje
- dizajniranje kontejnera
- proizvodnja kontejnera
- postavljanje kontejnera (manipulacija kranom, sastavljanje)
- prevoz kontejnera
- održavanje kontejnera
- izrada kontejnera prema posebnim zahtevima
Oblasti primene naših kontejnera
- kancelarije za projektante
- kancelarije za vođe gradilišta
- svlačionice
- smeštajne jedinice
- radionice
- recepcija
- portirnica
- prodajni prostori
- stanice za testiranja
- skladištenje opreme
- skladištenje alata
- mobilni sanitarni čvor























