Mobilbox – Profesionalni najam mobilnih svlačionica i prateće opreme
Tražite kompletno rešenje za organizaciju svlačionica za vaše zaposlene ili dešavanja? Mobilbox vam nudi:
Ključne usluge:
✔ Najam mobilnih svlačionica – brza instalacija na bilo kojoj lokaciji
✔ Kompletna oprema – garderobni ormari, vešalice, klupe, ogledala
✔ Fleksibilni uslovi – kratkoročni i dugoročni najam
✔ Transport i montaža – besplatna isporuka širom Srbije
Primena:
-
Građevinska i industrijska gradilišta
-
Sportski događaji i trening kampovi
-
Kulturno-zabavne manifestacije
-
Privremeni radni prostori
Naša oprema uključuje:
→ Garderobni ormari sa ključevima
→ Vešalice sa metalnim nosačima
→ Čelične klupe za udobnost
→ Grejalice i klime za održavanje optimalne temperatue
Dostupni smo u celoj Srbiji
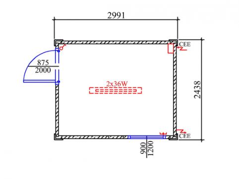
Karakteristike MB20
- Lako postavljanje i mobilnost
- Promjenjiva struktura panela
- spoljašnji dizajn: profilisani čelični limovi
- unutrašnji dizajn: iverica
- 1 kom spoljašnja vrata: 875 x 2.000 mm
- 2 kom belih PVC prozora: 900 x 1.200 mm, mehanizam za nagib i okret, termički izolovan, s roletnama<
Izolacija:
- Pod: 60/100 mm – mineralna vuna
- Zidovi: 60 mm – mineralna vuna
- Krov: 100 mm – mineralna vuna
Električne instalacije:
-
- 1 kom 400 V / 5-polni 3 x 32 A spoljašnji priključak prema CEE normama, ugrađen u nosač krova, spojiv
- 1 kom razvodna kutija, s RCD-om i prekidačem
- 1 kom prekidač za svetlo
- 2 kom 2 x 36 W fluorescentnih cevi
- 3 kom utičnice 230 V
Dimenzije
| Tip | Spoljašnje dimenzije | Unutrašnje dimenzije | Težina | ||||
| D | Š | V | D | Š | V | ||
| MB20 | 6.058 | 2.438 | 2.591 | 5.858 | 2.238 | 2.330 | 1,980 |
| MB25 | 6.058 | 2.438 | 2.591 | 5.858 | 2.238 | 2.330 | 2,150 |
| MB26 | 6.058 | 2.438 | 2.591 | 5.858 | 2.238 | 2.330 | 2,220 |
| MB16 | 4,880 | 2.438 | 2.591 | 4,680 | 2.238 | 2.330 | 1,620 |
| MB08 | 2,438 | 2.438 | 2.591 | 2,235 | 2.238 | 2.330 | 720 |
| MB10 | 2,991 | 2.438 | 2.591 | 2,791 | 2.238 | 2.330 | 1,130 |
PIŠITE NAM
Za ponudu ispunite formular
Naše usluge
- najam kontejnera
- prodaja kontejnera
- savetovanje
- dizajniranje kontejnera
- proizvodnja kontejnera
- postavljanje kontejnera (manipulacija kranom, sastavljanje)
- prevoz kontejnera
- održavanje kontejnera
- izrada kontejnera prema posebnim zahtevima
Oblasti primene naših kontejnera
- kancelarije za projektante
- kancelarije za vođe gradilišta
- svlačionice
- smeštajne jedinice
- radionice
- recepcija
- portirnica
- prodajni prostori
- stanice za testiranja
- skladištenje opreme
- skladištenje alata
- mobilni sanitarni čvor











