Profesionalni najam mobilnih portirnica – Mobilbox rešenja
Tražite funkcionalno rešenje za organizaciju kontrole pristupa? Mobilbox vam nudi kvalitetne mobilne portirnice za sve vrste objekata i lokacija.
Ključne karakteristike naših portirnica:
-
Kompaktne dimenzije sa optimalnom iskoristivošću prostora
-
Standardna oprema: grejanje, osvetljenje, ventilacija
-
Praktični prozori sa svih strana
-
Posebni prozor za rukovanje dokumentacijom
-
Izdržljiva konstrukcija od visokokvalitetnih materijala
Prednosti iznajmljivanja:
✔ Brzina implementacije – dostupno odmah
✔ Mobilnost – jednostavno premestanje po potrebi
✔ Ekonomski isplativo – bez investicionih troškova
✔ Univerzalna primena – za sve vrste objekata
Tipične namene:
• Kontrola pristupa na gradilištima
• Nadzor parking prostora
• Privremene službe recepcije
• Zaštitarske stanice
• Kontrolni punktovi za događaje
Dodatne usluge:
-
Transport i postavljanje na lokaciji
-
Mogućnost dodatne opreme po želji
-
Iznajmljivanje dodatne opreme (namještaj, klima…)
Dostupni smo u celoj Srbiji
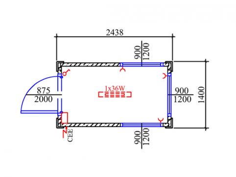
Karakteristike MB05:
- Lako postavljanje i mobilnost
- spoljašnji dizajn: profilisani čelični limovi
- unutrašnji dizajn: iverica
- 1 kom spoljašnja vrata: 875 x 2.000 mm
- 3 kom belih PVC prozora, termički izolovan, s roletnama
- 1 kom 900 x 1.200 mm, mehanizam za nagib i okret
- 1 kom 900 x .1200 mm, fiksni
- 1 kom 900 x 1.200 mm, klizni
Izolacija:
- Pod: 60/100 mm – mineralna vuna
- Zidovi: 60 mm – mineralna vuna
- Krov: 100 mm – mineralna vuna
Električne instalacije:
- 1 kom 400 V / 5-polni 3 x 32 A spoljašnji priključak prema CEE normama, ugrađen u nosač krova, spojiv
- 1 kom razvodna kutija, s RCD-om i prekidačem
- 1 kom prekidač za svetlo
- 1 kom 1 x 36 W fluorescentna cev
- 2 kom utičnice 230 V
Dimenzija
| Tip | Spoljašnje dimenzije | Unutrašnje dimenzije | Težina | ||||
| D | Š | V | D | Š | V | ||
| MB05 | 1,400 | 2,438 | 2,591 | 1,200 | 2,238 | 2,330 | 620 |
PIŠITE NAM
Za ponudu ispunite formular
Naše usluge
- najam kontejnera
- prodaja kontejnera
- savetovanje
- dizajniranje kontejnera
- proizvodnja kontejnera
- postavljanje kontejnera (manipulacija kranom, sastavljanje)
- prevoz kontejnera
- održavanje kontejnera
- izrada kontejnera prema posebnim zahtevima
Oblasti primene naših kontejnera
- kancelarije za projektante
- kancelarije za vođe gradilišta
- svlačionice
- smeštajne jedinice
- radionice
- recepcija
- portirnica
- prodajni prostori
- stanice za testiranja
- skladištenje opreme
- skladištenje alata
- mobilni sanitarni čvor

