- Pogodno za skladištenje sveže i smrznute paletirane robe
- Automatska regulacija temperature između -25,00 °C i +25,0 °C
- Daikin rashladni uređaj koji štedi energiju
- Digitalno čuvanje podataka
- Unutrašnja rasveta
- Sigurnosna brava (20′) / sigurnosna hladionička vrata (40′)
- PVC trakasta zavesa
- Pokretna rampa
Najam Mobilbox hladnjača
Mobilbox hladnjače idealan su izbor za čuvanje paletirane i smrznute robe većih količina. Hladnjače dolaze u dimenzijama 20′ i 40′.
Kome može biti zanimljiv najam hladnjača?
- Ko traži brzo i efikasno rešenje
- Za sezonske potrebe
- Kome su pouzdanost i ušteda energije važni činioci
Zašto se obratiti Mobilboxu kada je u pitanju najam hladnjače?
- Profesionalna usluga
- Prilagođavanje Vašim zahtevima
- Prilagođen plan plaćanja
Hladnjače za najam specifičnih karakteristika i veličina
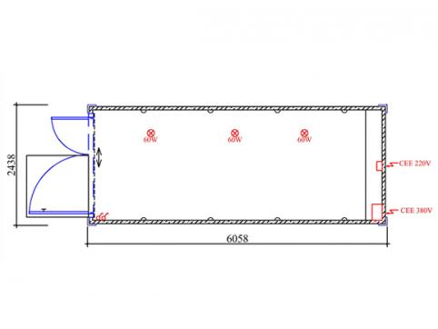
MR20
MR20 Hladnjača
Tehnički podatci:
- Pogodno za skladištenje sveže i smrznute paletirane robe
- Automatska regulacija temperature između -25,00 °C i +25,0 °C
- Daikin rashladni uređaj koji štedi energiju
- Digitalno čuvanje podataka
- 1 kom 230 V priključak za rasvetu
- 1 kom 400 V priključak za rashladni uređaj
- Jačina struje: 3 x 32 A
- Ukupna potrošnja: 13,5 kW
- unutrašnja rasveta
- Sigurnosna brava
- PVC trakasta zavesa
- Pomična rampa
- Maksimalno opterećenje: 20.740 kg (20′)
Dimenzije
| Tip | Spoljašnje dimenzije | Unutrašnje dimenzije | Težina | ||||
| D | Š | V | D | Š | V | ||
| MR20 | 6,058 | 2,438 | 2.591 | 5,427 | 2.292 | 2.310 | 3,260 |
| MR40 | 12,192 | 2,438 | 2.591 | 11,560 | 2.292 | 2.310 | 4,650 |
PIŠITE NAM
Za ponudu ispunite formular
Naše usluge
- najam kontejnera
- prodaja kontejnera
- savetovanje
- dizajniranje kontejnera
- proizvodnja kontejnera
- postavljanje kontejnera (manipulacija kranom, sastavljanje)
- prevoz kontejnera
- održavanje kontejnera
- izrada kontejnera prema posebnim zahtevima
Oblasti primene naših kontejnera
- kancelarije za projektante
- kancelarije za vođe gradilišta
- svlačionice
- smeštajne jedinice
- radionice
- recepcija
- portirnica
- prodajni prostori
- stanice za testiranja
- skladištenje opreme
- skladištenje alata
- mobilni sanitarni čvor



